This house for a young couple on a desert hillside is commanding in both its topography and surrounding views. The dramatic slope encourages a minimal footprint and stacked space. With a strong horizontal character and minimalist forms, the structure slides between saguaros and floats over the site. A masonry base is a perch on which the slender steel residence balances itself above the land. Prominent views to the east and a significant rock out-cropping are captured and inform the residence’s orientation and placement of apertures.
A tight budget combined with a desire to build minimally allowed a living area that completely opens up to the city and Mountain View to the east. In essence the great room is at once interior room and exterior portal with an operable enclosure that blurs the line between the inside and the surrounding valley of the Tucson Mountains.
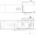
Efficiency in site intervention, construction, and inhabitation produce a residence that is both logical and calm. Coordination and sequencing of construction were necessary considerations in preserving the quiet landscape. Supported by two parallel Veirendeel trusses, the house is divided into two distinct zones; private functions are arranged in the southern end of the house, with kitchen, living and dining to the north.
Primary circulation is limited to one edge of the building, providing an overall linear organization. Low ceilings and smooth directional surfaces finish out the scheme and draw the eye through the building and out to the landscape.













