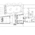
A master suite addition and new secondary building are added to a long lot in a neighborhood near a major university to create new infill density.
The design concept re-interprets the existing roof slopes of the existing bungalow to create new space that emphasizes natural light and open interiors. One skewed wall plane is shared by both the master suite addition and the new freestanding secondary building continues and emphasizes the deep lot.
Large openings are oriented north while narrow vertical slits slice the east and west walls to create a constantly moving sundial effect throughout the day. Integral color concrete rainscreen board wraps the exterior wall attached with precision stainless steel fasteners while cold rolled steel on the roof combine to establish a maintenance free enclosure system for this rental occupancy.
The proximity to higher education and the attention to detailing of the project create highly desirable, smart growth sustainability that taps into existing infrastructure and urban possibilities.

























